Die Wohnung liegt sehr ruhig in unmittelbarer Nähe des Viktoriaparks in Kronberg. Das Gebäude ist Bestandteil einer Eigentümergemeinschaft auf einem ca. 7.500 m² großen Grundstück, welches sich von der Hainstr. bis zur Viktoriastr. erstreckt. Die Wohnung befindet sich strassenseitig im EG. Zum Gartenbereich befindet man sich dann im 1.OG.
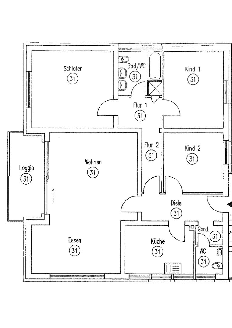
Der funktionale Grundriss mit einem großen Wohn-/Essbereich und seinen 3 Schlafzimmern bietet auf den ca. 112 m² viel Platz zur Entfaltung.
Aktuell ist die Wohnung für eine Nettokaltmiete von ca. 902 €/Monat vermietet. Hier besteht noch Mietsteigerungspotential.
Das Hausgeld betragt aktuell 452 Euro/Monat von dem der Mieter ca. 256/Monat als Vorauszahlungen für die Betriebs- und Heizkosten leistet.









